
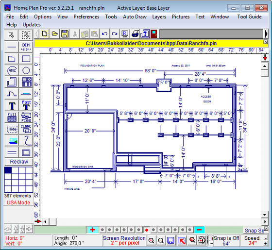
Home Plan Pro - отличная программа для быстрого и легкого черчения плана помещений, мест и архитектурного дизайна. Программа предлагает множество различных инструментов, которые помогут вам начертить план вашего дома, квартиры, жилых помещений и т.д. Пользователю предлагаются такие инструменты, как линии, овалы, прямоугольники, черчение стен, дверей, окон, арок, кирпичных стен, вставка изображений, текста, дублирование предыдущего элемента и многое другое.

Home Plan Pro - отличная программа для быстрого и легкого черчения плана помещений, мест и архитектурного дизайна. Программа предлагает множество различных инструментов, которые помогут вам начертить план вашего дома, квартиры, жилых помещений и т.д. Пользователю предлагаются такие инструменты, как линии, овалы, прямоугольники, черчение стен, дверей, окон, арок, кирпичных стен, вставка изображений, текста, дублирование предыдущего элемента и многое другое.

Home Plan Pro - отличная программа для быстрого и легкого черчения плана помещений, мест и архитектурного дизайна. Программа предлагает множество различных инструментов, которые помогут вам начертить план вашего дома, квартиры, жилых помещений и т.д. Пользователю предлагаются такие инструменты, как линии, овалы, прямоугольники, черчение стен, дверей, окон, арок, кирпичных стен, вставка изображений, текста, дублирование предыдущего элемента и многое другое.

Home Plan Pro - отличная программа для быстрого и легкого черчения плана помещений, мест и архитектурного дизайна. Программа предлагает множество различных инструментов, которые помогут вам начертить план вашего дома, квартиры, жилых помещений и т.д. Пользователю предлагаются такие инструменты, как линии, овалы, прямоугольники, черчение стен, дверей, окон, арок, кирпичных стен, вставка изображений, текста, дублирование предыдущего элемента и многое другое.

Easy Mail Plus напечатает и отправит ваше сообщение по факсу или по электронной почте, подготовит конверт и напечатает марку. И лучше всего то, что вы не меняете настройки вашего принтера! Встроенная функция импорта использует простую технологию перетаскивания для того, чтобы быстро создавать Address файлы с ваших существующих файлов с данными.

Easy Mail Plus напечатает и отправит ваше сообщение по факсу или по электронной почте, подготовит конверт и напечатает марку. И лучше всего то, что вы не меняете настройки вашего принтера! Встроенная функция импорта использует простую технологию перетаскивания для того, чтобы быстро создавать Address файлы с ваших существующих файлов с данными.

Easy Mail Plus напечатает и отправит ваше сообщение по факсу или по электронной почте, подготовит конверт и напечатает марку. И лучше всего то, что вы не меняете настройки вашего принтера! Встроенная функция импорта использует простую технологию перетаскивания для того, чтобы быстро создавать Address файлы с ваших существующих файлов с данными.

Easy Plan Pro - мощная программа для быстрого и простого черчения схем, понятного дизайна. Аналог CAD программ разработаных для архитекторов и инженеров. Можно менять масштаб изображения, работать со слоями (скрывать их) и многое другое.

